La Maison de l’Autisme :
un projet architectural au cœur de Bruxelles

Localisation
La future Maison de l’Autisme de la Région de Bruxelles-Capitale est accueillie dans le quartier Usquare. Ce dernier est né de la transformation de l’ancienne Ecole Royale de Gendarmerie d’Ixelles en un quartier mixte avec des locaux d’enseignement et de recherche universitaires (ULB et VUB), des logements pour des familles et des étudiants, ainsi que des équipements comme la Maison de l’Autisme.
La Maison de l’Autisme est implantée à l’angle des rues Fritz Toussaint et de la rue Juliette Wytsman à Ixelles dans un ensemble de bâtiment existants de grande qualité architecturale qui correspondaient notamment à l’ancienne piste de voltige pour les chevaux et à l’infirmerie vétérinaire de l’Ecole Royale de Gendarmerie.
Elle bénéfice d’une situation privilégiée au sein du site qui lui permet :
- De bénéficier d’un environnement apaisé, dans un secteur résidentiel éloigné des grands axes routiers de l’avenue de la Couronne et du Boulevard Jacques ;
- De se développer autour d’une cour centrale lui offrant la possibilité d’être relativement isolée de l’animation du site Usquare tout en bénéficiant d’un espace extérieur qui lui est propre.
Elle hérite par ailleurs de l’ensemble des qualités de Usquare, notamment :
- Excellente desserte en transport en commun avec la proximité immédiate de la Gare d’Etterbeek, la station de tram Roffiaen, les arrêts de bus (Delporte, Rodin) ;
- Cadre architectural et patrimonial prestigieux et qualitatif ;
- Espaces publics réaménagés, sans voiture à l’intérieur du site et avec la création d’un grand parc public.

Le projet architectural

Le projet architectural a été confié en mars 2025 à la coopérative d’architectes KARBON’.
Le projet traduit spatialement, et en ayant le souci d’une grande lisibilité fonctionnelle, les missions principales de la Maison de l’Autisme, à savoir :
- « le Foyer » (en rouge) : les espaces dédiés à l’accueil, l’accompagnement, l’orientation des personnes autistes et de leurs proches ;
- "le Coin formation » (en jaune) : les espaces dédiés à la formation et à la mise en réseau ;
- « la Halle d’activité » (en vert) : les espaces dédiés à des activités de loisirs et de rencontres ;
- « l’Observatoire » (en bleu): les espaces propres à l’équipe de la Maison de l’Autisme (bureaux et salle de réunion), où sera notamment gérée la base de données et de connaissances liée à l’autisme et aux services proposés en région bruxelloise
La Maison de l’Autisme sera accessible depuis :
- Une nouvelle entrée créée Rue Juliette Wystman, accessible pendant les heures d’ouverture de la Maison de l’Autisme . Elle a l’avantage de se situer à l’écart de l’animation de Usquare dans une zone plus tranquille;
- Une entrée depuis Usquare par la cour intérieure qui permettra notamment de rendre accessible les locaux de formation et d’activités de loisirs en soirée et le week-end.
Une grande partie des locaux de la Maison de l’Autisme seront mis à disposition du secteur, des associations, des professionnels et des personnes autistes pour y développer des activités. La maison est créée pour être un lieu de rencontres et de vie, un lieu pour se ressourcer.
Le jardin

L’ensemble des locaux sont articulés et accessibles depuis la cour centrale aménagée en jardin favorisant le répit, le contact avec des éléments naturels et la stimulation des sens.
Confié au paysagiste Jan Minne, le jardin est la pièce centrale du projet. Il est conçu de façon à favoriser l’apaisement pour les personnes autistes, mais aussi la stimulation et le jeu pour les enfants.
La présence de l’eau dans le jardin constitue notamment un élément ludique, mais aussi un élément fascinant pour l’observation, le calme, avec sa propre musicalité.
« Comme à la maison »
Les choix effectués pour l’aménagement des lieux ont privilégié la volonté de créer un cadre proche de la maison, qui soit un « havre de paix » et de ressourcement pour les personnes autistes et sécurisant.
La Maison est celle des personnes autistes, mais aussi des parents, des proches. Tous doivent y trouver répit, conseil et accompagnement et s’y sentir bien accueillis.


L’aménagement favorise les matériaux naturels et chaleureux, tout en veillant à ce que la lumière, la température, la ventilation puissent être réglés par les utilisateurs. L’ensemble des locaux du projet est accessible aux personnes à mobilité réduite.
Une attention très forte est portée à l’isolation acoustique des lieux par rapport à l’environnement extérieur et entre les locaux.
Des espaces refuges sont mis en place dans divers endroits stratégiques pour pouvoir à tout moment lors d’une activité, mais aussi dès l’accueil, se replier dans un endroit favorable à l’apaisement.

Les plans du projet
La demande de permis d’urbanisme pour le projet a été introduite le 5 mars 2026 auprès d’URBAN, l’administration en charge de l’instruction des permis d’urbanisme à la Région. Vous trouverez ici :
- La notice explicative du projet : xxxx
- La synthèse des plans du projet : xxxxx
Les plans présentés ci-après sont extraits de la demande de permis.
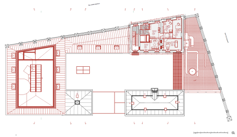
Plan du Rez-de-chaussée --->
C’est au rez-de-chaussée que se situe la majorité des surfaces du projet offertes aux usagers :
- En rouge, le « foyer » : accueil, médiathèque, et « halte répit » (accueil des enfants lorsque leurs parents sont en rendez-vous ou participent à une activité sans leur enfant ;
- En jaune , le « coin formation » : locaux de formation et cuisine-réfectoire où des ateliers cuisine peuvent également être donnés ;
- En vert, la « halle d’activités » : surface totalement flexible pour des activités de loisirs ou à l’occasion d’évènements dans la halle


<--- Plan niveau + 0.5
A cet étage intermédiaire, sont situés :
- Dans la » halle d’activités » : une salle de psychomotricité et deux espaces de rencontres où des ateliers peuvent avoir lieu (peinture, dessin, etc.)
- Dans le foyer : un local technique
Plan niveau + 1 --->
Au 1er étage du « Foyer » se retrouvent les locaux de rendez-vous où les personnes autistes et leurs proches pourront rencontrer les professionnels de la maison de l’autisme et bénéficier d’un accompagnement et de conseils


<--- Plan niveau + 2
Au 2ème étage , sous les toits, se situent les bureaux des professionnels de la Maison de l’Autisme, lorsqu’ils ne sont pas mobilisés pour des rendez-vous ou activités avec les usagers de la Maison
Planning
- Programmation architecturale (étude préalable confiée au bureau CENTRALE définissant les besoins) : 2023-2024
- Attribution du marché de conception : 27 mars 2025
- Dépôt de la demande de permis : 5 mars 2026
- Planning prévisionnel des travaux : 2027-2029
Surfaces
- Superficie du terrain : 1470 m²
- Emprise au sol du projet : 955 m²
- Superficie de plancher de tous les niveaux hors-sol : 1.415,5 m²
- Superficie cour-jardin : 515m²
Acteurs
Le projet est porté par le Ministre Laurent HUBLET en charge du handicap pour le Gouvernement de la COCOF.
| INITIATEUR DU PROJET et COORDINATEUR DU SECTEUR DE L’AUTISME | COCOF |
| MAITRE D’OUVRAGE | Société d’Aménagement Urbain |
| EXPERTE PARTICIPATION AUTISME | Emilie Noël |
| COMITE D’USAGERS | Acteurs, experts, usagers fédérés pour accompagner l’élaboration du projet |
| EQUIPE DE CONCEPTION | |
| Architecture | Karbon’ architecture & urbanisme |
| Paysage | Jan Minne |
| Stabilité | SEA + partners |
| Techniques Spéciales | MK Engineering |
| Acoustique | ASM Acoustics |
| PEB | COSEAS |
| BIM | SV architecte |
Les articles publiés sur ce site reflètent uniquement les opinions de leurs auteur·rice·s respectif·ve·s. Le site ne peut être tenu responsable des points de vue exprimés dans ces contributions. Ces actualités sont partagées dans un souci de diversité d'opinions et pour enrichir le débat sur l'autisme.
Recommandation d'actus
Participez à la campagne Not invisible (Pas invisible) de l'association Autisme-Europe
-
Les témoins et témoignages
-
Texte
-
AutismEurope
-
Les initiatives et la production des personnes autistes
Nocturnes, Brussels Museums After Hours
-
Texte
-
Julie Desbois-Jones
-
Le loisir
🎧 Spectrophonic - Épisode 4 : William et Émilie
-
- Les témoins et témoignages
- Podcasts
-
Son
-
Maison de l'Autisme
-
Comprendre l’autisme